Master Plan: Drawn by G. Dyer

Master Plan: Drawn by G. Dyer

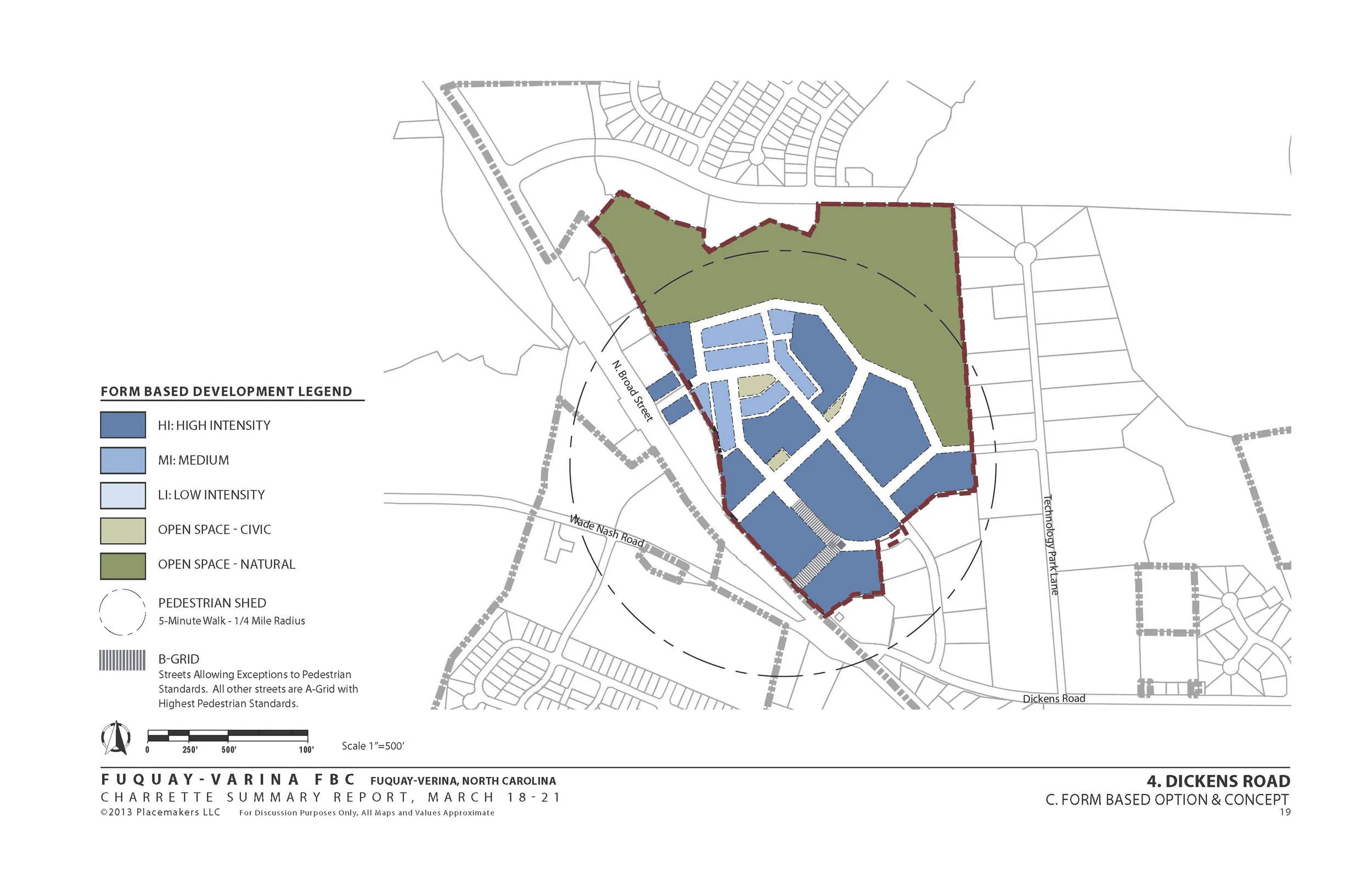
Fuquay-Verina SmartCode

Location: Fuquay-Verina, North Carolina
Size/Description: Form-Based Code to implement walkable, mixed use centers, including master plans for four mixed use catalyst sites (200 acres) as part of a week long charrette.  
Role:  As Lead Designer, Project Principal
Commentary: The project scoop, coming soon.
(2012)